|
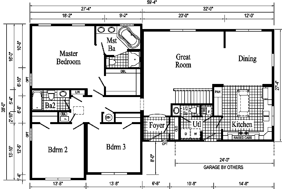
Rochester Quick Specs |
|||
|
Base Model #: |
HT103-A |
Bedrooms: |
3 |
|
Size: |
38’ x 59’-4” |
Bathrooms: |
2, 1/2 |
|
Sq. Ft. |
1895 |
|
|

Additional Information
Pennwest Standard Features provides the details of what makes up this floor plan inside and out.
The Rochester floor plan displayed above is a “standard floor plan” provided as “standard” purely as a convenience and a basic starting point for your ideas. Do not let this floor plan limit your dreams. We can customize this floor plan in almost infinite ways to suit you. Yes, we can make this floor plan larger or smaller too - adding or removing space where you want it. In fact, you don’t even need to use this floor plan at all. Submit your own floor plans, thoughts, ideas or descriptions and we can help draw up a completely customized floor plan. Of course, some limitations, such as, building codes, engineering and vendors do apply. Please consult a sales representative for further details.
HVAC System - Pennwest homes come standard with one of the highest quality HVAC systems available in the modular home industry. This system, standard – at no additional cost, includes a High Efficiency Gas Furnace, a complete air supply duct system, perimeter air supply registers, a complete air return duct system, air return grills placed strategically throughout the home and much more. Learn more about the Pennwest HVAC System. Other heat sources are available - including Oil, hot water baseboard elements and base board electric heat. Please see a Patriot Home Sales sales representative for further details.
Options / Upgrades - As part of our commitment to custom built homes our Pennwest homes are available with a wide range of customizable standard elements to add character to your home - all at minimal or no additional cost. Additional Options & Upgrades are available to add convenience, beauty and value to the home of your dreams. The
Pennwest Options Brochure (in PDF Format) highlights some of the Options & Upgrades available.
Contact us by email
